Another Onan question: I am planning on running a 30A setup due to the fact I am only running 1 A/C unit, 12v only fridge and on occasion a microwave, I already have a 30A cord and extension. There is currently a 30A Atwood Box/Charger onboard and I plan on swapping to a Victron Energy Multiplus II, The Onan is a 6000K 50A, should I run one hot leg to the Victron and the other hot leg to electrical panel to a dedicated breaker for A/C and Microwave or just not use 1 leg?
The PO did not have anything except for the Atwood 30A panel laying inside, I bought the 30A TT cord at RV auction and I also picked up a 25' 30-TT extension cord at auction.If you already have a 30A shore power cord, then a PO must have already jumped it somewhere (maybe in the breaker panel) to power both sides of the panel. That's fine for one A/C unit.
The 30A power invertor is 30A DC at 12V, so it's only going to draw ~3A at 120VAC. Negligible.
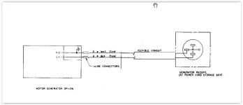
Your 50A 6000W Onan already has its output jumped from one single 120V leg onto the 2nd leg at the receptacle.
Is your shore power a 30A 125V standard 30-TT plug? So you don't have two hots feeding the panel, right? There's just a ground, neutral, and one single Line 'hot', correct? It must be feeding both sides of the panel somewhere.
A single 30A shore power cord for one A/C unit is fine and the invertor isn't drawing much.
BTW, that 30-TT standard plug _I_think_ is named TT for Travel Trailer, that's my theory anyway.
So tie the 2 hot legs together or just run one?Scott,
It sounds like you are falling into the Charging Current / House Current issue that does not exist.
The NH Onan is a 50 amp machine - Single line. A 50 amp supply is 2X50 amp on two lines.
So, run everything on the service from the Onan and don't worry about it.
Matt_C
Scott,So tie the 2 hot legs together or just run one?

I just had the same issue with my cigarette outlet circuit. I dislike glass fuses, I'll probably eliminate that whole panel soon, and swap in something with blade fuses.Here is a quick tip! I was having intermittent electrical issues with headlights, turn signals, backup lights dash lights etc. I thought I saw a video or comments about cleaning the fuse block. I pulled the fuse block and all fuses, took a look and sure enough the fuse tabs looked corroded. Took out my Dremel and with a long skinny stone cleaned up all the tabs. All issues are now gone!!!!
I want to do the same, but people keep trying to talk me out of it.I just had the same issue with my cigarette outlet circuit. I dislike glass fuses, I'll probably eliminate that whole panel soon, and swap in something with blade fuses.
Just clean them up much easier than swapping in new style fuse block, glass fuses work fine.I want to do the same, but people keep trying to talk me out of it.
They won't be as good as they used to be. The plating is gone at this point. Corrosion resistance is severely compromised. Dielectric grease can help, but is messy. Then there are the rivets. Just another contact point that starts building up resistance. I've caught my fuse panel getting hot at the rivets before. It's easy to clean them up and get individual circuits working again for sure, but a replacement/upgrade is really best in the long term. I can guarantee every one of the old fuse panels has more resistance than it used to, and will have more resistance in the future.Just clean them up much easier than swapping in new style fuse block, glass fuses work fine.